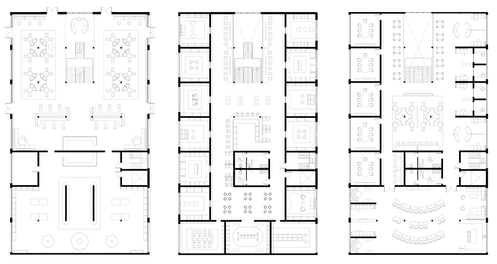
samford university | spring 2025 | 44,000 sf | revit, lumion, sketchup, adobe creative suite
floorplans
sections